Lokal inwestycyjny-duży ruch

Wrocław, Przedmieście Oławskie, Gen. Kazimierza Pułaskiego

1 699 997 PLN

Numer oferty100286 (1)
Typ transakcjiSprzedaż
Cena1 699 997 PLN
Powierzchnia168 m2
Cena za m210 119,03 PLN / m2
Piętroparter/1
Typ lokaluhandel i usługi/lokal usługowy
Liczba łazienek0
Dostępne od2025-10-21
Lokal inwestycyjny-duży ruch (Wrocław, Przedmieście Oławskie, Gen. Kazimierza Pułaskiego)

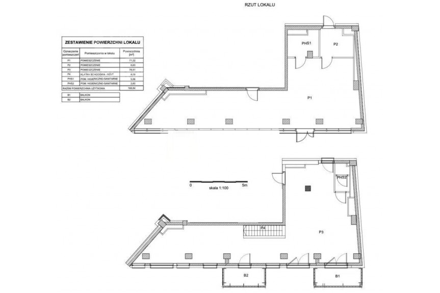
Przedstawiamy Państwu wyjątkowy lokal lokal-usługowy o powierzchni 168 m², położony w doskonale widocznym punkcie blisko centrum miasta.
Lokal znajduje się przy ruchliwej ulicy, co zapewnia ciągły przepływ pieszych i samochodów oraz doskonałą ekspozycję od frontu - witryna widoczna z głównej drogi przyciąga wzrok każdego przechodnia.
To idealne miejsce dla restauracji, kawiarni, showroomu, sklepu lub biura o wysokim standardzie.

Opis lokalu:
Dodatkowo możliwość zakupu miejsca parkingowego w cenie 55 000 netto zł. Powierzchnia całkowita: 168 m², Dwa poziomy - parter i piętro, Duża, przeszklona witryna z ekspozycją na główną ulicę, Balkon z widokiem na drogę, Kuchnia, Toaleta, Możliwość pełnego przystosowania pod gastronomię - wentylacja, zaplecze kuchenne, strefa dla klientów, Wejście od frontu bezpośrednio z chodnika, Dojazd i wejście techniczne od zaplecza - idealne do rozładunku towaru, Nowoczesna bryła budynku, Funkcjonalny układ pomieszczeń umożliwiający dowolną aranżację pod gastronomię, handel, usługi lub biuro. Cena sprzedaży:

1 699 997 zł netto


Atuty inwestycji:
Doskonała ekspozycja - lokal widoczny z głównej ulicy, Blisko centrum - świetna komunikacja i duży ruch pieszy, Możliwość prowadzenia działalności gastronomicznej, Dwa poziomy - elastyczny podział funkcji (kuchnia, sala konsumpcyjna, biuro, magazyn), Balkon i przeszklona fasada - naturalne światło i reprezentacyjny wygląd, Wejście techniczne od zaplecza - wygodna logistyka i dostawy, Świetna inwestycja - wysoki potencjał wynajmu i wzrost wartości nieruchomości. Lokal stanowi doskonałą propozycję dla inwestorów lub przedsiębiorców planujących otworzyć restaurację, kawiarnię, showroom, sklep lub punkt usługowy w atrakcyjnej, dobrze widocznej lokalizacji blisko centrum miasta.
To idealne miejsce łączące reprezentacyjny charakter z praktycznym układem i wysokim potencjałem komercyjnym.

Estate Brokers
Doradca ds. Nieruchomości: Tygran Bagratyan
+48 455 504 744
? b.tigran.ebrokers@gmail.com

Ми також розмовляємо українською мовою - звертайтеся для отримання всієї інформації!
We also speak English - feel free to contact us for details.

Powyższa oferta ma charakter informacyjny i nie stanowi oferty handlowej w rozumieniu art. 66 Kodeksu Cywilnego.

Informacje
Ogrzewanie
Wrocław, Przedmieście Oławskie, Gen. Kazimierza Pułaskiego

Kontakt