Dla rodziny | 4 parki |3 pok -57m2 |Osobna kuchnia

Wrocław, Krzyki, Życzliwa

815 000 PLN

Numer oferty937875 (1)
Typ transakcjiSprzedaż
Cena815 000 PLN
Powierzchnia57 m2
Cena za m214 298,25 PLN / m2
Liczba pokoi3
Piętro2/4
Typ przyłącza wodyWoda miejska
OgrzewanieCo Miejskie
Typ budynkuBlok Mieszkalny
Dostępne od2026-03-03
Forma własnościWłasność
Materiał budowlanysilikat
Rok budowy2015
Kanalizacjajest
Liczba wind1
Liczba sypialni3
Dla rodziny | 4 parki |3 pok -57m2 |Osobna kuchnia (Wrocław, Krzyki, Życzliwa)

Na sprzedaż | 3 pokoje | 56,87 m² | 2 balkony | Klecina | ul. Życzliwa | 815 000 zł
Na sprzedaż nowoczesne, w pełni rozkładowe mieszkanie 3-pokojowe o powierzchni 56,87 m², położone na 2. piętrze w 4-piętrowym budynku z 2015 roku z windą, na cenionym i kameralnym osiedlu na wrocławskiej Klecinie (Krzyki).
To idealna propozycja dla rodzin, par oraz inwestorów poszukujących nieruchomości w spokojnej, zielonej okolicy z doskonałą komunikacją z centrum miasta.

Standard wykończenia
Lokal został starannie wykończony z użyciem wysokiej jakości materiałów:
na podłogach gres oraz panele
kuchnia z zabudową na wymiar i sprzętem AGD (zmywarka, kuchenka, piekarnik)
pojemne szafy w zabudowie stałej w pokojach i przedpokoju
okna plastikowe
drzwi antywłamaniowe
domofon / wideofon
ogrzewanie miejskie

Mieszkanie sprzedawane z zabudową stałą oraz wybranym wyposażeniem.

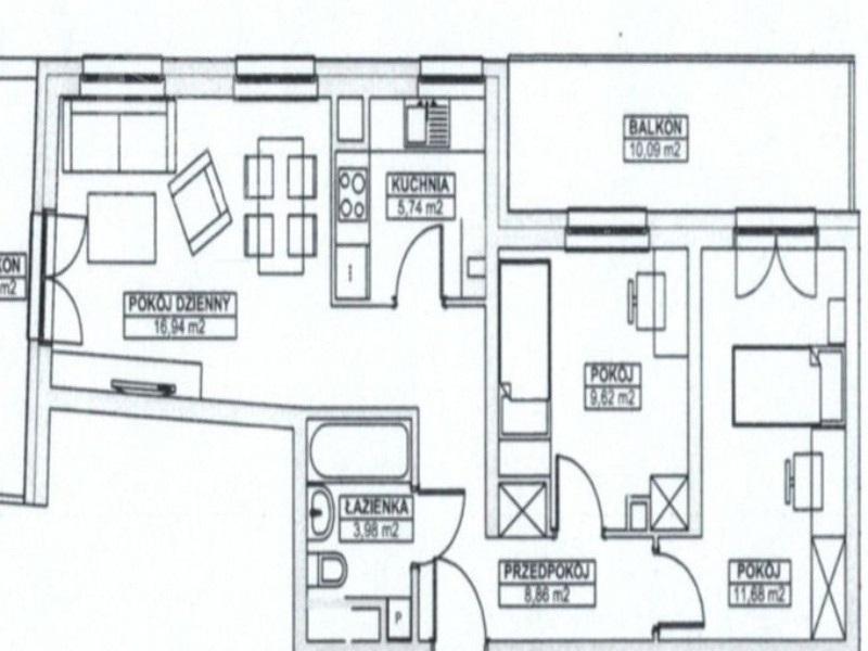
Układ pomieszczeń
salon - 16,94 m² z wyjściem na balkon 7,12 m²
sypialnia - 9,62 m²
sypialnia - 11,68 m² z wyjściem na balkon 10,09 m²
oddzielna kuchnia - 5,74 m²
łazienka - 3,98 m²
przedpokój - 8,86 m²

Mieszkanie w pełni funkcjonalne, bardzo dobrze zaplanowane - bez pomieszczeń przechodnich.

Jedna z najbardziej poszukiwanych części Wrocławia - połączenie zieleni, nowoczesnej zabudowy i świetnej komunikacji.
W bezpośrednim otoczeniu aż 4 tereny zielone:
Park Krzycki (tuż obok)
Park Kleciński
Park Południowy
tereny spacerowe nad Ślęzą

W okolicy pełna infrastruktura:
szkoły, przedszkola, żłobki, sklepy, przychodnie, restauracje, siłownie, punkty usługowe.

Komunikacja
tramwaje: 7, 17 (ok. 5 min pieszo)
autobusy: D, 107, 133
ok. 20 minut do Rynku
szybki wyjazd na AOW i autostradę A4
dogodny dojazd do centrum, uczelni oraz dworców PKP/PKS

Cena - 815 000

Anatolii Chubyk
Estate Brokers
tel: 452 055 195

"Poniższa oferta ma charakter informacyjny i nie stanowi oferty handlowej w rozumieniu art.66 Kodeksu Cywilnego"
To wyjątkowa okazja na inwestycję w prestiżowy budynek w doskonałej lokalizacji. Jeśli jesteś zainteresowany tym apartamentem, nie czekaj dłużej - skontaktuj się z nami, aby poznać więcej szczegółów!

Informacje
Kanalizacja Woda Winda Ogrzewanie Internet Balkon Domofon
Wrocław, Krzyki, Życzliwa

Kontakt